Birdman
-
Typologies : rénovation et transformation d'un théâtre
Localisation : le Brassus, Commune du Chenit , Vaud, Suisse
Maitre d’ouvrage: Public, commune du Brassus
Collaboration : Louise Plassard, Almir Delfieu
Concours : 5 ème rang avec mention
Dossier : BRA
Date : 2025
Derrière le rideau
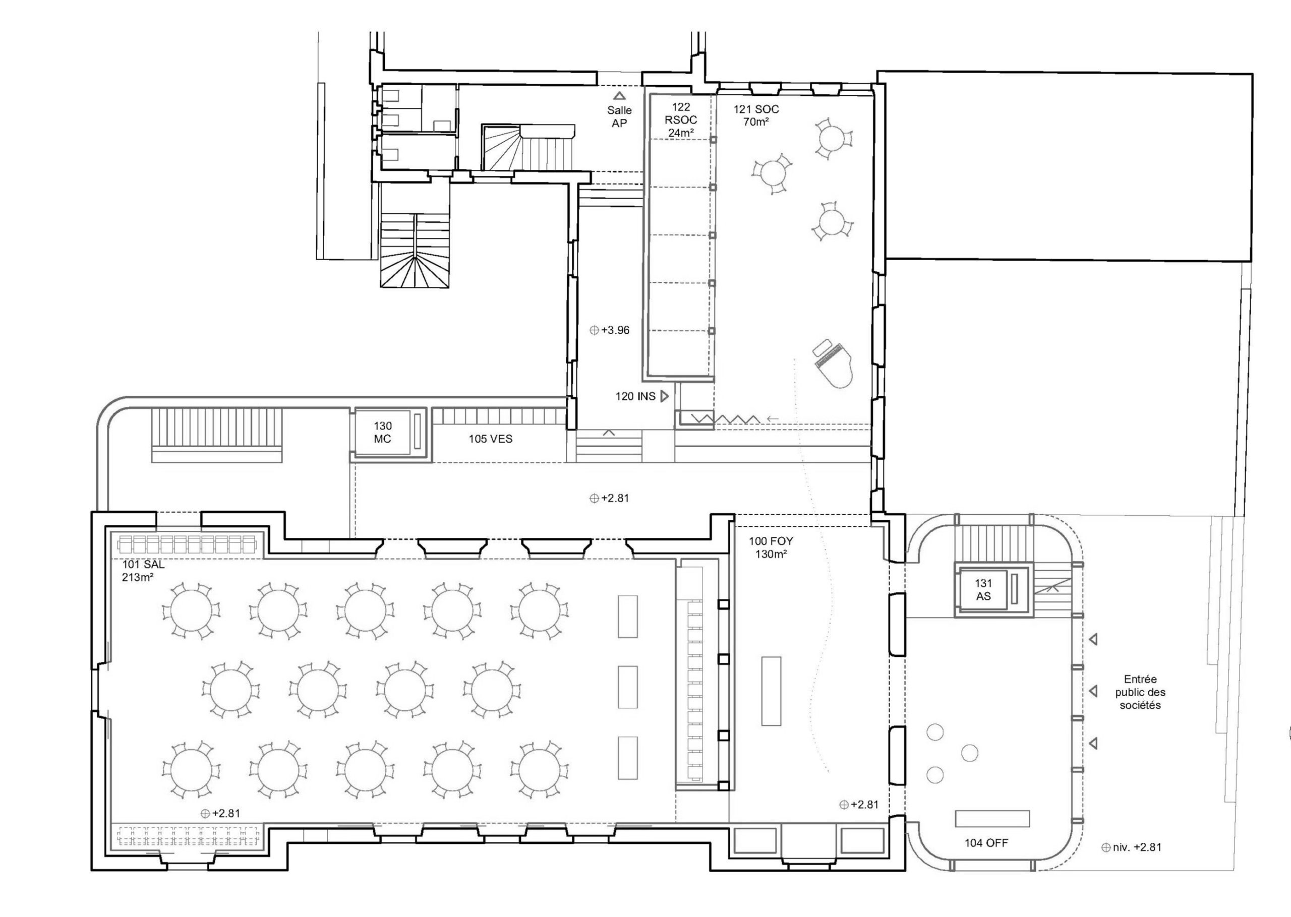
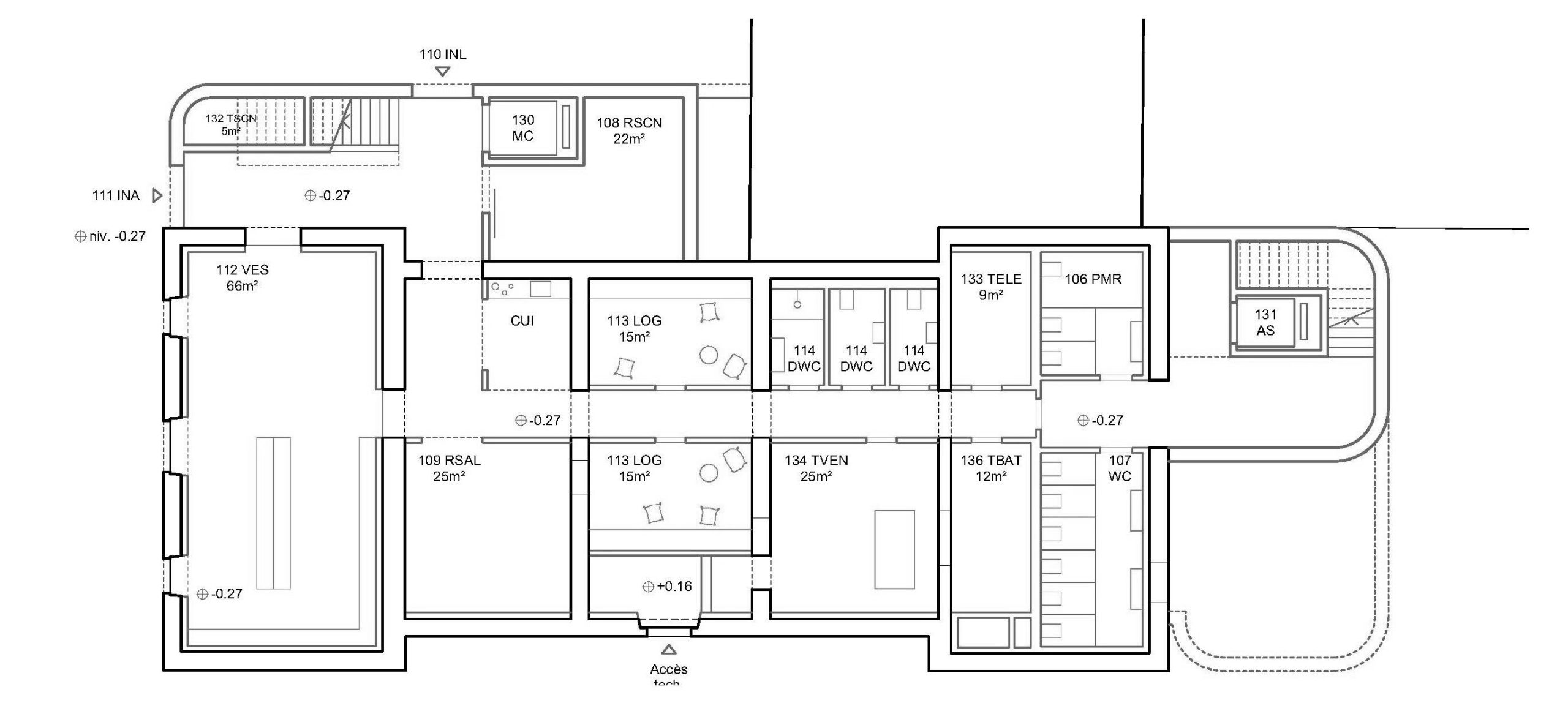
Offrir du volume pour apporter de la flexibilité fonctionnelle : La proposition de flexibilité commence par une intervention sur la fluidité des circulations et l’inter pénétrabilité des espaces sectorisés autour de l’ajout de volumes de distribution horizontales et verticales qui décompressent les accès. Le projet présente la volonté de pouvoir interchanger des usages autour d’un volume identique (dont le volume de référence est celui de la scène) entre la salle de répétition, celle de la salle des sociétés. Cette salle polyvalente est au contact entre le foyer et la salle Audemar Piguet ce qui permet de multiplier les activités avec différents usages/programmes. La présence de volume de stockage en lien directe avec chaque grande pièce, leurs permettent à la fois une certaine autonomie qui peut se transformer en interchangeabilité.
Aménagement extérieur : Le projet redessine le parvis à l’entrée du théâtre. Avec son nouveau volume de café/foyer, au rez libre et à la façade cannelée, celui-ci marque un appel aux promeneurs. Il développe une fine terrasse ensoleillée entre le jardin non parcourus et le chemin de l’église. Ce dernier en changeant de matérialité marque le détachement entre les deux entités, et met en avant par son axialité le portique de l’église. A l’arrière du volume, en pavé, se développent les zones de repos, face au paysage champêtre, sous les arbres cerclés de banc, laissant circuler occasionnellement les camions de livraison pour les cuisines et le théâtre. Le parking n’étant occupé que les jours d’activité, lui se fond dans les champs, sur des pavés en grille gazon de sorte à laisser un maximum de porosité au sol.
Offrir du volume pour apporter de la flexibilité fonctionnelle : La proposition de flexibilité commence par une intervention sur la fluidité des circulations et l’inter pénétrabilité des espaces sectorisés autour de l’ajout de volumes de distribution horizontales et verticales qui décompressent les accès.
Le projet présente la volonté de pouvoir interchanger des usages autour d’un volume identique (dont le volume de référence est celui de la scène) entre la salle de répétition, celle de la salle des sociétés. Cette salle polyvalente est au contact entre le foyer et la salle Audemar Piguet ce qui permet de multiplier les activités avec différents usages/programmes. La présence de volume de stockage en lien directe avec chaque grande pièce, leurs permettent à la fois une certaine autonomie qui peut se transformer en interchangeabilité.
Salle / scénographie
En hauteur : accroissement
En redescendant le niveau de la salle (à son niveau d’origine) de plain-pied avec la salle, le projet offre la multiplicité des usages. Les scénographie actuelle requièrent de plus en plus de le contact directe au public. En déplaçant le monobloc de ventilation ainsi que son plancher, la scène gagne encore en volume pour accueillir un grill d’1m de haut dans les cintres tout en laissant encore de vide brut de 6m d’étage. Une scène haute est toujours montable provisoirement (issus de location) pour le besoin des concerts debout.
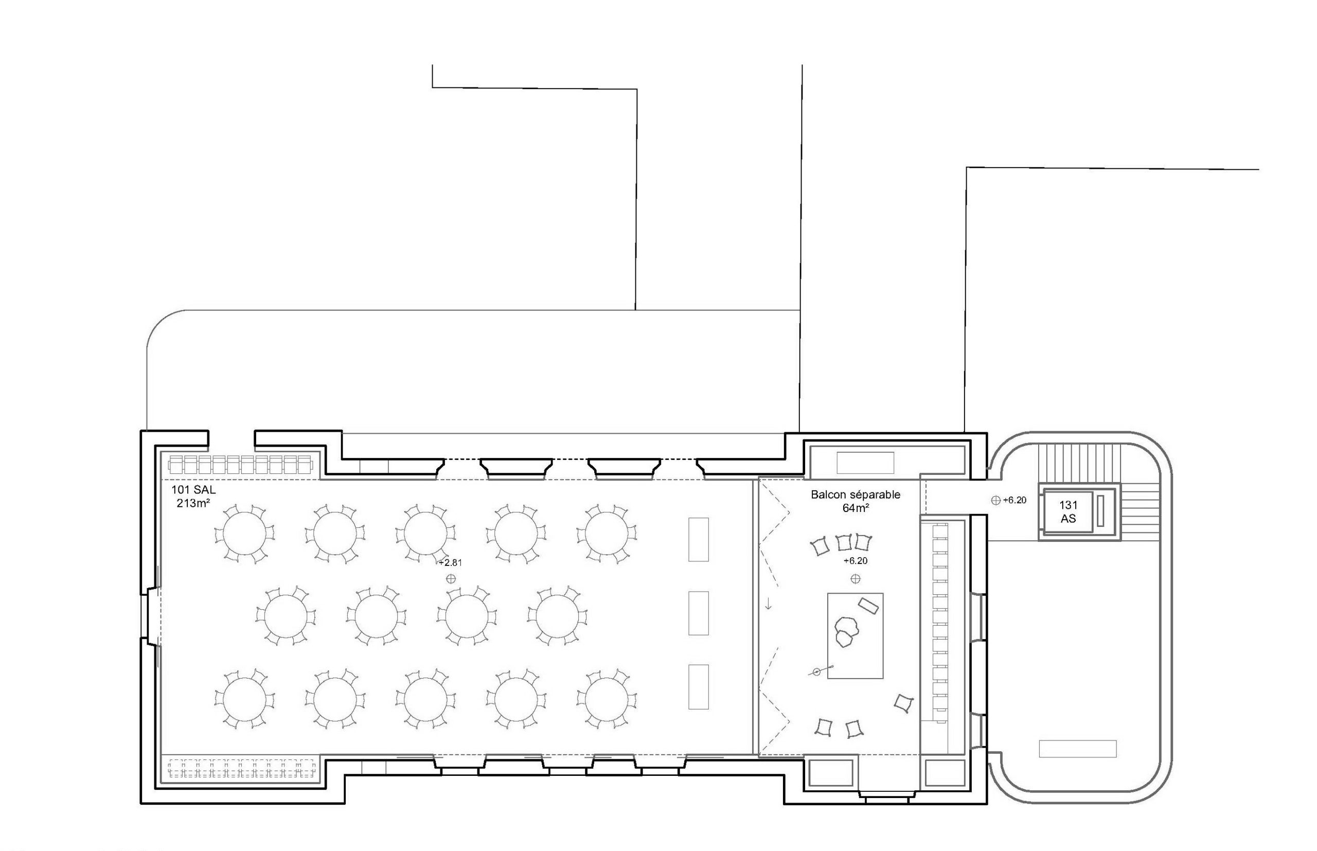
En largeur : multiusage
Dans l’éventualité d’un besoin d’avant-scène, les trois premier rangs peuvent s’intégrer dans l’épaisseur du sol, ajoutant x m2 par exemple pour des spectacle de danse. Bénéficiant d’un grand volume de plein pied Xm2 une fois les 11 rang de gradins replier dans la cloison du fond, la salle peut accueillir tout type d’évènement. La structure de la plateforme des gradin en bois pourra être réemployé pour créer toute les cloisons int
Offrir du volume pour apporter de la flexibilité fonctionnelle : La proposition de flexibilité commence par une intervention sur la fluidité des circulations et l’inter pénétrabilité des espaces sectorisés autour de l’ajout de volumes de distribution horizontales et verticales qui décompressent les accès.
Le projet présente la volonté de pouvoir interchanger des usages autour d’un volume identique (dont le volume de référence est celui de la scène) entre la salle de répétition, celle de la salle des sociétés. Cette salle polyvalente est au contact entre le foyer et la salle Audemar Piguet ce qui permet de multiplier les activités avec différents usages/programmes. La présence de volume de stockage en lien directe avec chaque grande pièce, leurs permettent à la fois une certaine autonomie qui peut se transformer en interchangeabilité.
Salle / scénographie
En hauteur : accroissement
En redescendant le niveau de la salle (à son niveau d’origine) de plain-pied avec la salle, le projet offre la multiplicité des usages. Les scénographie actuelle requièrent de plus en plus de le contact directe au public. En déplaçant le monobloc de ventilation ainsi que son plancher, la scène gagne encore en volume pour accueillir un grill d’1m de haut dans les cintres tout en laissant encore de vide brut de 6m d’étage. Une scène haute est toujours montable provisoirement (issus de location) pour le besoin des concerts debout.
En largeur : multiusage
Dans l’éventualité d’un besoin d’avant-scène, les trois premier rangs peuvent s’intégrer dans l’épaisseur du sol, ajoutant x m2 par exemple pour des spectacle de danse. Bénéficiant d’un grand volume de plein pied Xm2 une fois les 11 rang de gradins replier dans la cloison du fond, la salle peut accueillir tout type d’évènement. La structure de la plateforme des gradin en bois pourra être réemployé pour créer toute les cloisons int
-
-
-
-
-
-
-
-
-
-
-
-
-
-
- lost river
- Seul au monde
- le château de l’araignée
- Transformers
- Kagemusha
- the valley below
- Banzaï
- Et au milieu coule une rivière
- On connait la chanson
- Powwow Highway
- Big Fish
- Swiss Army Man
- L’histoire sans fin
- Buffet froid
- Amour
- Birdman
- Super Mario Bros
- La mélodie du bonheur
- captain fantastic
- Pandora
- Ran
- Les moissons du ciel
- the machinist
- North by north west
- Les Poupées russes
- The man who would be king
- the lobster
- Un balcon en forêt
- Mathilda
- Réservoir dog
- La horse
- Porte des lilas
- La balade sauvage
- Le jour d’après
- Playtime
- Les bronzés font du ski
- Printemps, été, automne, hiver… et printemps
- Le retour du roi
- Tant qu’il y aura des hommes
- La petite maison dans la prairie
- Chambre avec vue
- Volver
- Quand passent les cigognes