L’histoire sans fin
-
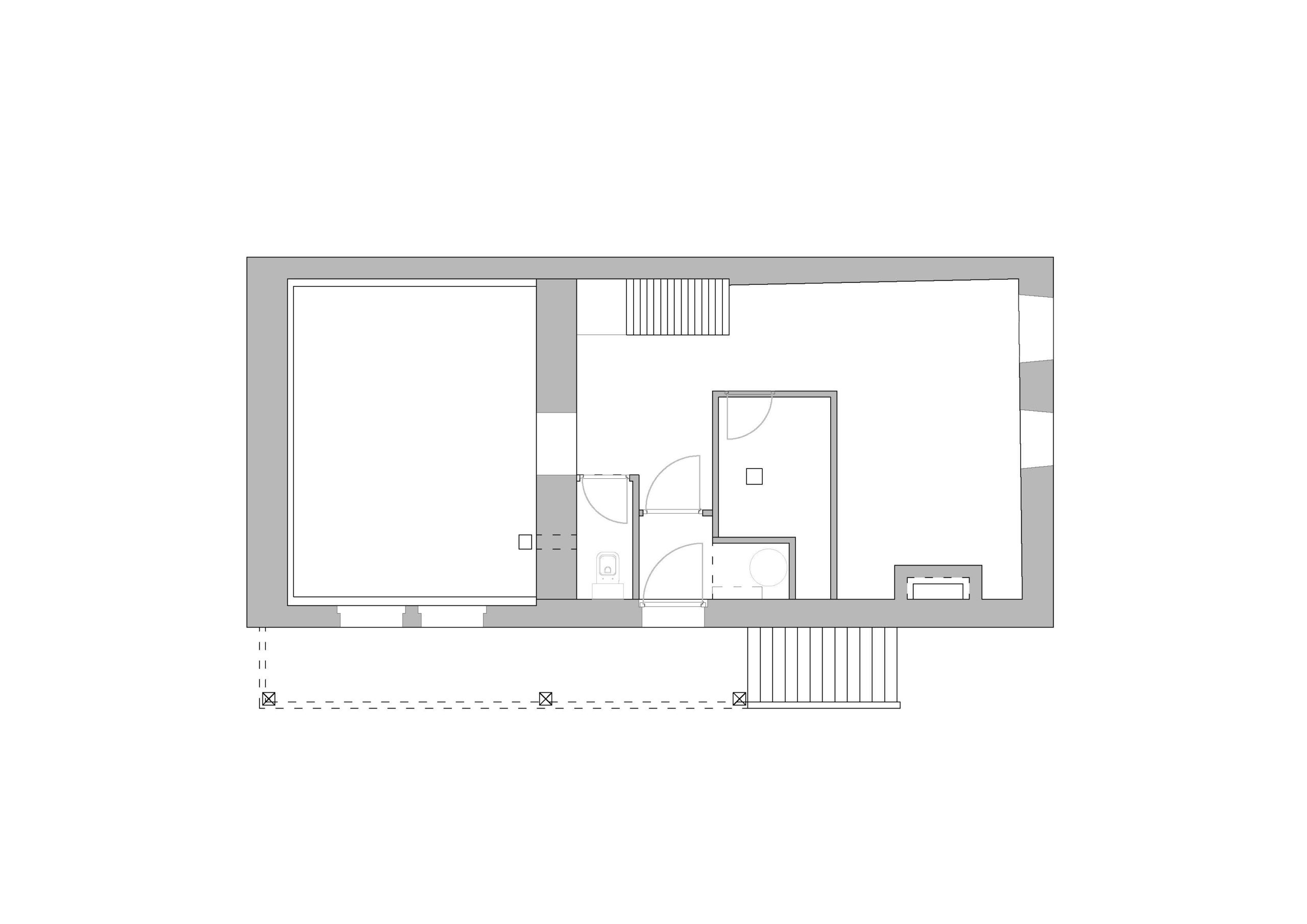
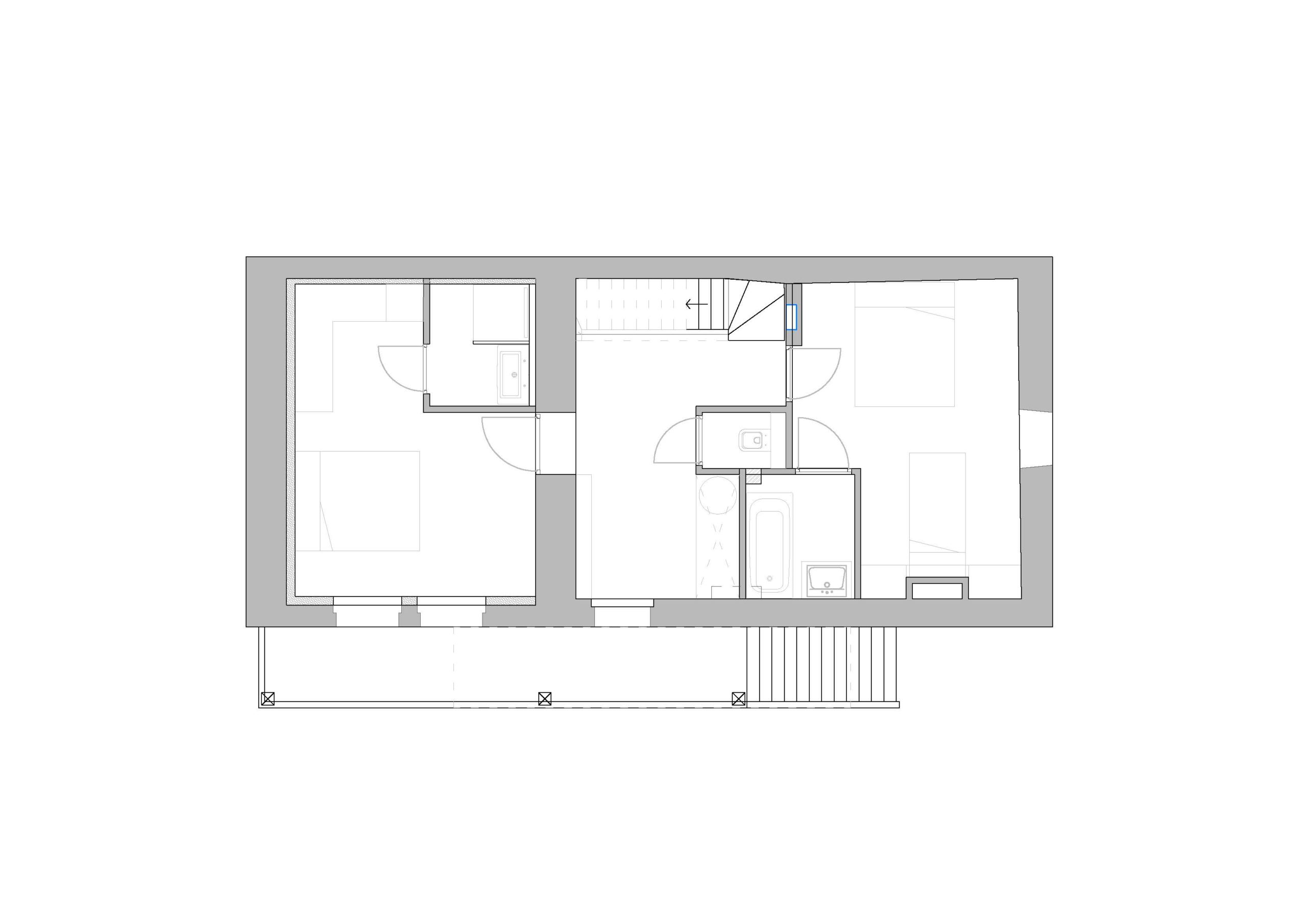
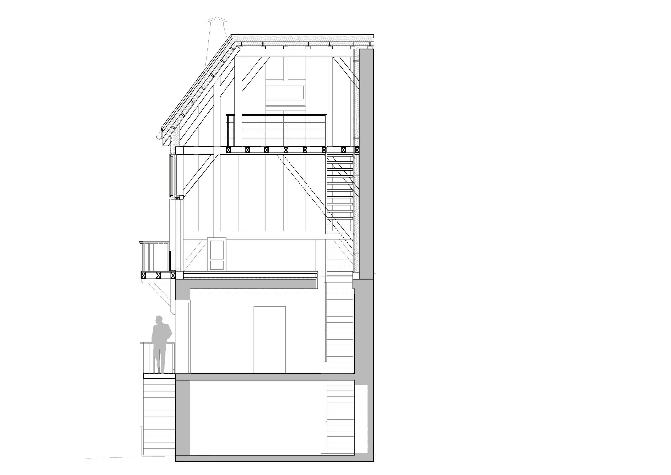
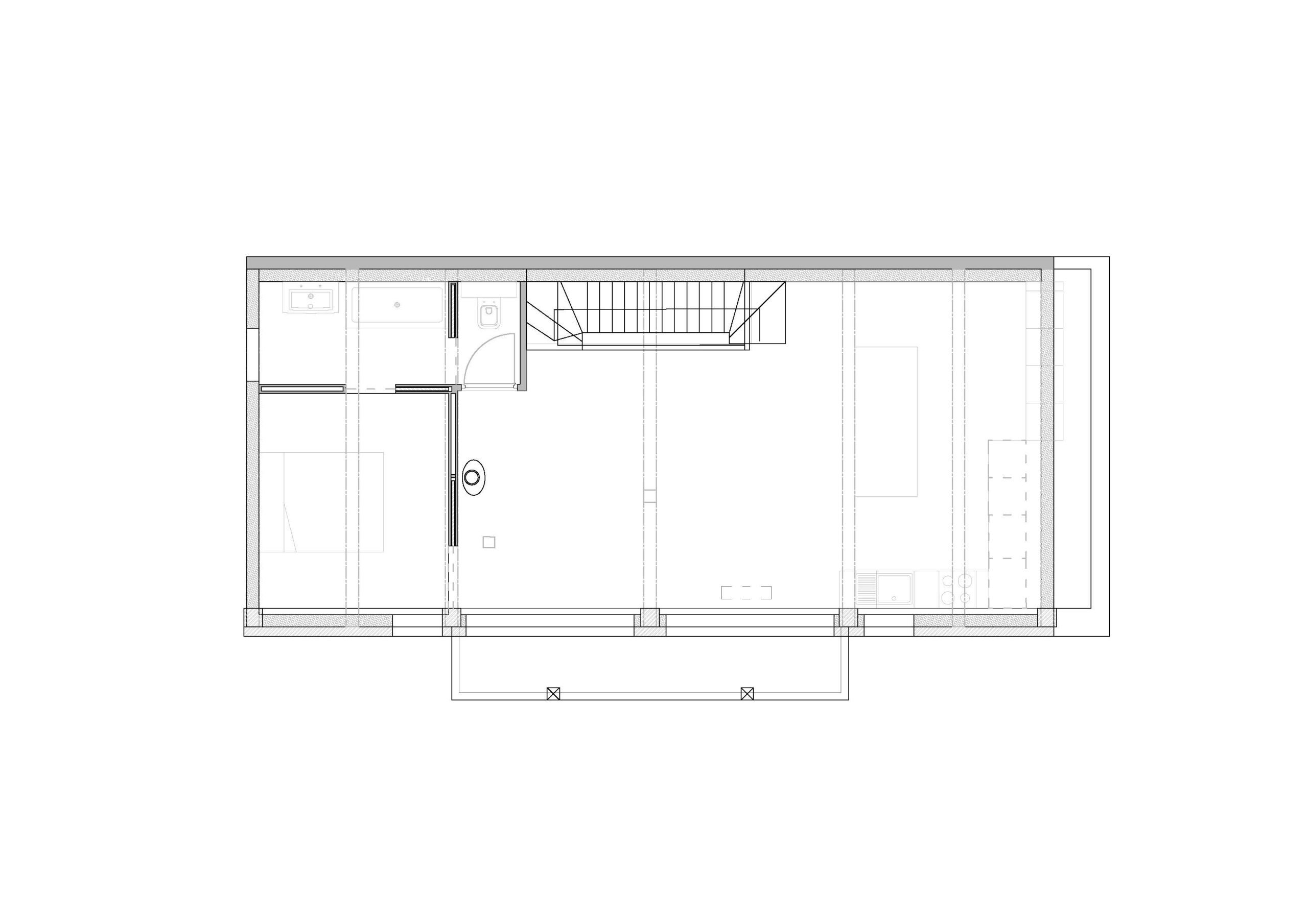
Typologies : rénovation d’un chalet
##
Localisation : Parz de lys Haute Savoie, France
##
Maitre d’ouvrage: Privé
##
Dossier : LYS
##
Phase : projet, Autorisation, DT
##
Date : 2018-2026
### -
-
-
-
-
-
-
-
-
-
- lost river
- Seul au monde
- le château de l’araignée
- Transformers
- Kagemusha
- the valley below
- Banzaï
- Et au milieu coule une rivière
- On connait la chanson
- Powwow Highway
- Big Fish
- Swiss Army Man
- L’histoire sans fin
- Buffet froid
- Amour
- Birdman
- Super Mario Bros
- Le hussard sur le toit
- La forêt d’émeraude
- La mélodie du bonheur
- captain fantastic
- Pandora
- Ran
- Les moissons du ciel
- the machinist
- North by north west
- Les Poupées russes
- The man who would be king
- the lobster
- Un balcon en forêt
- Mathilda
- Réservoir dog
- La horse
- Porte des lilas
- La balade sauvage
- Le jour d’après
- Playtime
- Les bronzés font du ski
- Printemps, été, automne, hiver… et printemps
- Le retour du roi
- Tant qu’il y aura des hommes
- La petite maison dans la prairie
- Chambre avec vue
- Volver
- Quand passent les cigognes