Buffet froid
-
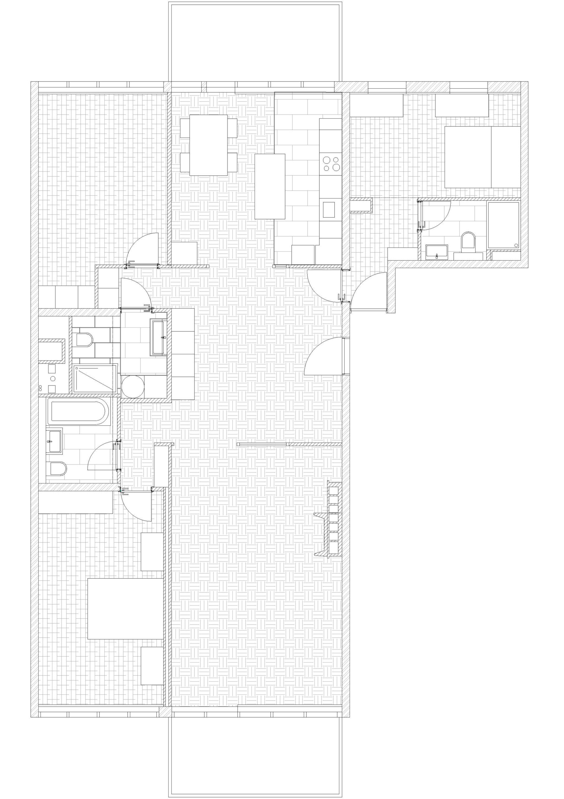
Typologies : rénovation d'un appartement, d'une barre de logement de Georges Addor, de 1955
Localisation : Citée Malagnou Genève
Maitre d’ouvrage: Privé
Dossier : MCM
Phase : Projet, Autorisation, DT
Date : 2025
Cette rénovation est une intervention au sein de la barre de logement classée de citée Malagnou. Ce bâtiment est une des premières grandes réalisations de Georges Addor, daté de 1955. La typologie de logement a particulièrement retenu notre attention avec un grand espace peu défini au cœur de l'appartement. Le choix du projet a été d'offrir plus de porosité entre les espaces servis en les liant pour devenir traversants. En contre-pied , l'espace servit est agrandi vers le centre du logement marquant une ligne forte dissociant pièces de jour et de nuit. La rénovation de cet appartement, a été réalisée dans le maximum de respect des matériaux bio sourcés, pour produire le moins de COV pour les ouvriers et garder un air intérieur sain à la suite des travaux pour les habitants. Une très grande attention a été portée sur les colles des parquets, sur les enduits, les peintures jusqu'à la mousse utilisés pour le calage de mousse ec1. Les cloisons ont été réalisées grâce à des panneaux de terre crue armée de fibre de lin avec un enduit argile , blanchi à l'oxyde de titane, l'isolation sous les fenêtres a été réalisée en laine de bois, contre les contre-cœur mixte briquette/shichtex/béton des années 50.
-
-
-
-
-
-
-
-
-
-
- lost river
- Seul au monde
- le château de l’araignée
- Transformers
- Kagemusha
- the valley below
- Banzaï
- Et au milieu coule une rivière
- On connait la chanson
- Powwow Highway
- Big Fish
- Swiss Army Man
- L’histoire sans fin
- Buffet froid
- Amour
- La mélodie du bonheur
- captain fantastic
- Pandora
- Ran
- Les moissons du ciel
- the machinist
- North by north west
- Les Poupées russes
- The man who would be king
- the lobster
- Un balcon en forêt
- Mathilda
- Réservoir dog
- La horse
- Porte des lilas
- La balade sauvage
- Le jour d’après
- Playtime
- Les bronzes font du ski
- Printemps, été, automne, hiver… et printemps
- Le retour du roi
- Tant qu’il y aura des hommes
- La petite maison dans la prairie
- Chambre avec vue
- Volver
- Quand passent les cigognes